Sastamala
Omistamme kiinteistöyhtiön osakekannasta 51 %.
| Sijainti: | Puistokatu 11, 38200 SASTAMALA |
|---|---|
| Tilatyyppi: | Toimistohuone |
| Kerros: | 3. |
| Pinta-ala: | n. 12 m² (331b) |
| Vuokra €/ kk: | 165 € + alv (sähkö sisältyy vuokraan) |
| Vapautuminen: | Heti vapaa! |
| Lisätietoja: | Talossa on hissi. |
Mahdollisuus yhdistää sopiva kokonaisuus 3. kerroksen erilaisista huoneista.
| Sijainti: | Puistokatu 11, 38200 SASTAMALA |
|---|---|
| Tilatyyppi: | Toimistohuone |
| Kerros: | 3. |
| Pinta-ala: | n. 15 m² (324) |
| Vuokra €/ kk: | 220 € + alv (sähkö sisältyy vuokraan) |
| Vapautuminen: | Heti vapaa! |
| Lisätietoja: | Talossa on hissi. |
Wc:t ja keittiö yhteiskäytössä. Käytävällä odotustila.
Mahdollisuus yhdistää sopiva kokonaisuus 3. kerroksen erilaisista huoneista.
| Sijainti: | Puistokatu 11, 38200 SASTAMALA |
|---|---|
| Tilatyyppi: | Toimistohuone |
| Kerros: | 3. |
| Pinta-ala: | n. 31 m² (325) |
| Vuokra €/ kk: | 390 € + alv (sähkö sisältyy vuokraan) |
| Vapautuminen: | Heti vapaa! |
| Lisätietoja: | Talossa on hissi. |
Wc:t ja keittiö yhteiskäytössä. Käytävällä odotustila.
Tila on entinen kanslia. Käytävän puolella palveluluukut.
Mahdollisuus yhdistää sopiva kokonaisuus 3. kerroksen erilaisista huoneista.
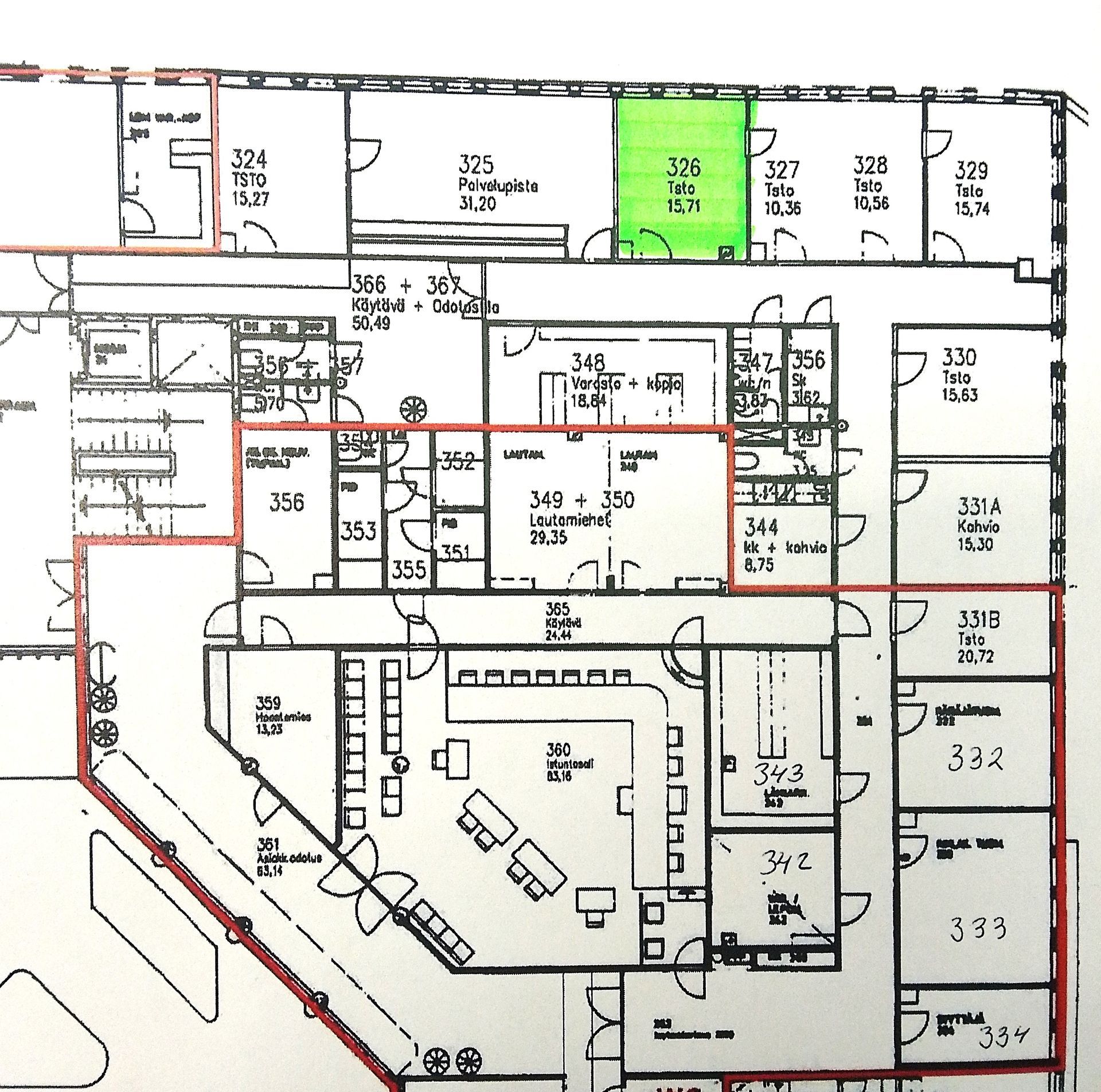
| Sijainti: | Puistokatu 11, 38200 SASTAMALA |
|---|---|
| Tilatyyppi: | Toimistohuone |
| Kerros: | 3. |
| Pinta-ala: | n. 15,5 m² (326) |
| Vuokra €/ kk: | 220 € + alv (sähkö sisältyy vuokraan) |
| Vapautuminen: | Heti vapaa! |
| Lisätietoja: | Talossa on hissi. |
Wc:t ja keittiö yhteiskäytössä. Käytävällä odotustila.
Mahdollisuus yhdistää sopiva kokonaisuus 3. kerroksen erilaisista huoneista.
| Sijainti: | Puistokatu 11, 38200 SASTAMALA |
|---|---|
| Tilatyyppi: | Varastohuone |
| Kerros: | 3. |
| Pinta-ala: | n. 17,5 m² (343) |
| Vuokra €/ kk: | 220 € + alv (sähkö sisältyy vuokraan) |
| Vapautuminen: | Heti vapaa! |
| Lisätietoja: | Talossa on hissi. |
Mahdollisuus yhdistää sopiva kokonaisuus 3. kerroksen erilaisista huoneista.
| Sijainti: | Puistokatu 11, 38200 SASTAMALA |
|---|---|
| Tilatyyppi: | Varastohuone |
| Kerros: | 3. |
| Pinta-ala: | n. 18,8 m² (348) |
| Vuokra €/ kk: | 230 € + alv (sähkö sisältyy vuokraan) |
| Vapautuminen: | Heti vapaa! |
| Lisätietoja: | Talossa on hissi. |
Mahdollisuus yhdistää sopiva kokonaisuus 3. kerroksen erilaisista huoneista.
| Sijainti: | Puistokatu 11, 38200 SASTAMALA |
|---|---|
| Tilatyyppi: | Toimistohuone |
| Kerros: | 3. |
| Pinta-ala: | n. 29,5 m² (349+350) |
| Vuokra €/ kk: | 280 € + alv (sähkö sisältyy vuokraan) |
| Vapautuminen: | Heti vapaa! |
| Lisätietoja: | Talossa on hissi. |
Mahdollisuus yhdistää sopiva kokonaisuus 3. kerroksen erilaisista huoneista.
| Sijainti: | Puistokatu 11, 38200 SASTAMALA |
|---|---|
| Tilatyyppi: | Toimistokokonaisuus, jossa oma keittiö/kahvihuone ja wc:t |
| Kerros: | 3. |
| Pinta-ala: | n. 155,5 m² |
| Vuokra €/ kk: | 1290€+ alv. (sähkö sisältyy vuokraan) |
| Vapautuminen: | Heti vapaa! |
| Lisätietoja: | Talossa on hissi. |
Kuvia 3. kerroksen toimistokokonaisuudesta, jonka pinta-ala on n. 155,5 m².
Toimistosta löytyy kaksi vessaa ja minikeittiö, jossa on mm. jääkaappi pakastelokerolla ja hella.
Sopii hyvin myös esim. koulutustilaksi. Toimisto on kourutettu lähes kokonaan ja kouruissa on uudet tietokonepistorasiat, eli atk-asennukset on helppo tehdä. Talossa on hissi
| Sijainti: | Puistokatu 11, 38200 SASTAMALA |
|---|---|
| Tilatyyppi: | Ravintolatila |
| Kerros: | 3. |
| Pinta-ala: | n. 131,5 m² |
| Vuokra €/ kk: | 990€ + alv. |
| Vapautuminen: | Heti vapaa! |
| Lisätietoja: | Talossa on hissi. |
Alla kuvia heti vapaana olevasta 131,5 m² toimitilasta sekä tilan koneista ja laitteista. Kaikkien kuvissa näkyvien koneiden ja laitteiden käyttö kuuluu vuokraan. Koneet ovat suurin osa Metos-merkkiä. Tilassa on lisäksi todella tilava jääkaappi ja monta pakastinta, ne eivät näy kuvissa.




| Sijainti: | Puistokatu 11, 38200 SASTAMALA |
|---|---|
| Tilatyyppi: | Liiketila |
| Kerros: | Katutaso |
| Pinta-ala: | n.548,5 |
| Vuokra €/ kk: | Sopimuksen mukaan |
| Vapautuminen: | Heti vapaa! |
| Lisätietoja: |
Entinen ravintola. Alakerrassa keittiö, sosiaalitilat ja varastotilaa.
Tilat sijaitsevat aivan torin laidalla, Vammalan virastotalossa.
VAMMALAN KEHITYS OY
Vuokrataan toimistotilaa Vammalassa. Mahdollisuus myös pientoimistoihin. Kysy lisätietoja yhteyshenkilöltämme, tiedot löytyvät alta.

Yhteyshenkilö
Sähköposti: info@eerola.fi
Gsm: 0400 600 230













































